Search

Leave a Message

Thank you for your message. I will be in touch with you shortly.

Explore Our Properties

Property Description

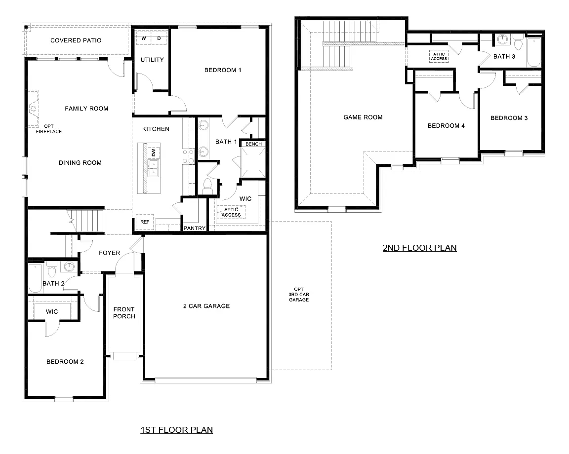
This charming D.R. Horton Series home plan offers a blend of comfort and functionality, designed to accommodate a variety of lifestyles. The exterior of the home includes a custom and architecturally designed elevation. The front exterior of the home boasts divided light windows and a front facing 2-car garage door with decorative hardware and handles. Enter the home through the covered front porch that leads to the 8-foot, walnut gel-stained front door (decorative front door options are available for upgrade). Opening the door will lead you to a foyer entry that invites you to the rest of the home. The kitchen features 42" flat panel cabinets with hidden hinges, granite or quartz countertops, and stainless-steel appliances. The large kitchen island is the perfect size for meal prep with a built-in sink and dishwasher. There is also a large pantry for plenty of storage space. The large primary bedroom features an adjoined bathroom that will make getting ready in the mornings feel like a dream. The elongated vanity includes two sinks and a non-framed mirror. The primary bathroom also includes a walk-in shower and walk-in closet. This plan includes Energy Star features, ceramic tile flooring in all bathrooms, laminate wood plank in living areas, carpet in bedrooms, and an innovative tech package. Additional bonus features include gutters and a user-friendly smart home system. Photos shown here may not depict the specified home and features. Contact us today for more details!

Overview

Property Status
Sold
Property Type
Residential
Year Built
2025

Features & Amenities

Neighborhood
Dallas County

Downloads

8425 Slowburn Dr

Schedule a Tour

I would love to help you see this beautiful home! As a full-service professional, I can help you tour. Please submit an offer, and answer questions about the buying process.

Thank you

for your interest in 8425 Slowburn Drive, Garland, TX 75043

8425 Slowburn Dr
Navigate

 

Dallas County

Explore Dallas County

read more

I'm Interested In

8425 Slowburn Dr

or
  • CallClinton Asalu

    License #0775473

    (908) 249-7708
  • Active & Sold Listings

    Featured Properties

    • 2269 Palomino Street For Sale

      $369,000

      2269 Palomino Street, Mesquite, TX 75149

      • 4 Beds
      • 4 Baths
      • 2,290 Sq.Ft.
    • 1109 Neptune Drive For Sale

      $270,500

      1109 Neptune Drive, Cedar Hill, TX 75104

      • 3 Beds
      • 2 Baths
      • 1,156 Sq.Ft.
    • 1805 Lockhart Drive Pending

      $3,350/mo

      1805 Lockhart Drive, Forney, TX 75126

      • 4 Beds
      • 3 Baths
      • 2,899 Sq.Ft.
    View All

    Follow Me On Instagram